Dom w konstrukcji łukowej

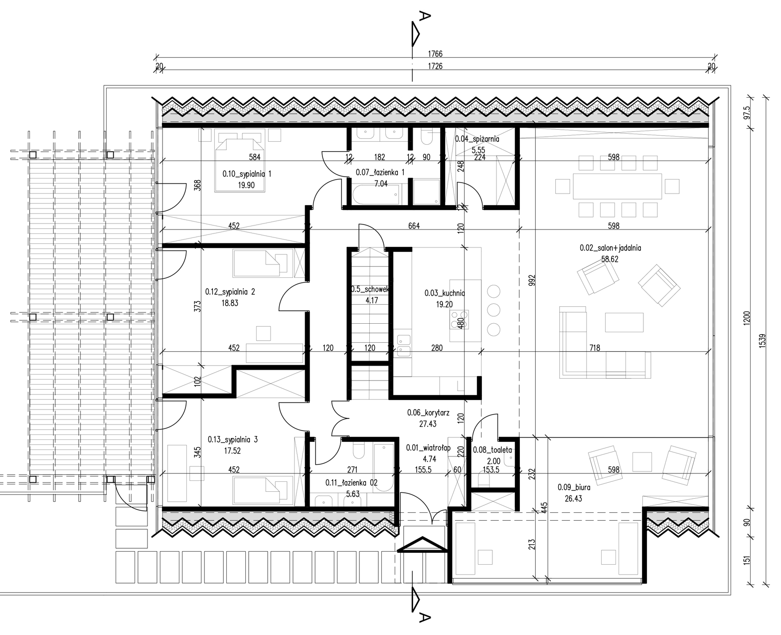
Koncepcja pierwszego w Polsce domu o konstrukcji z łuków k-span (używanych przez amerykanów do budowy hangarów lotniczych). Kształt domu i specjalna podwójna powłoka pozwala uzyskać bardzo wysoką wydajność energetyczną i zminimalizować straty ciepła, dzięki temu dom można zaliczyć do architektury pasywnej. Wszystkie najważniejsze pomieszczenia zlokalizowane są na parterze, w klasycznym podziale na strefę „dzienną” i „nocną”. Piętro przeznaczono do dowolnego zaaranżowania przez przyszłych domowników.